
| hirdetés azonosítója: | 101801 | |
| jelleg: | Eladó | |
| ingatlan típusa: | Ikerház | |
| irányár: | 69 900 000 Ft | |
| megye: | Pest | még több Pest megyei hirdetés |
| település: | Biatorbágy | még több Biatorbágy |
| telek terület: | 648 m² | |
| hasznos alapterület: | 148 m² | |
| építés módja: | Tégla | |
| szobák száma: | 6 | |
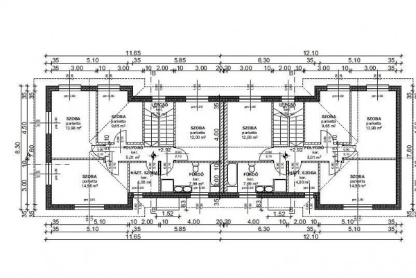
| bővebb leírás: | ELADÓ Biatorbágy csendes zsákutcában nettó 148 m2-es ikerház mindkét fele, ami teljes belmagasságú szint, nem tetőteres, saját elkerített 300 m2- kert résszel! Mindegyik házrész saját közműmérő órákkal lesz felszerelve, közvetlen a szolgáltató felé fizetéssel. A házaknak egymáshoz nincs is szerkezet közük, ugyanis középen dupla fal készül és közötte hangszigetelő gyapot kerül elhelyezésre, így semmi áthallás! Második födém is vasbeton szerkezet, tökéletes hőcsapda, hőszigetelés - felette még padlástér!!! HÁROM!!! réteg üvegű ablakok a legjobb hő és hangszigetelésért, és passzív házas építés szerinti hungarocell blokk elemekből. (Thermo-block 35, U érték= 0,15 !!!) A teraszok elég távol vannak egymástól, mivel nagyon széles az épület, és így a kertkapcsolat, a kialakuló élet teljesen elszeparált, ellentétes irányú, nem zavarják egymást. Építkezés kezdése: 2019. augusztus, átadása: 2020. május vége (így szinte mindenbe bele lehet szólni, hogy milyen legyen akár az elrendezés, akár falak, burkolatok, stb., illetve még egy előző ingatlan eladása is belefér. Földszinten kertkapcsolatot tágas világos nappali, konyha, étkező, vendégszoba, zuhanyzós fürdőszoba, külön Wc, emeleten négy szoba, fürdő és háztartási helyiség kerül kialakításra! Ár: 90%-os készültségben 69,9 Millió Ft!! |
|
| helységek: | ||
| kapcsolat: | Flick Euridyke | |
| telefonszám: | +36 30 202-5375 | |
| e-mail cím: | uh.enilno-t@oidutsnaltagniisroadub | |
| ingatlan iroda: | Budaörsi Ingatlan Stúdió | Az iroda további hirdetései |
| iroda címe: | 2040 Budaörs, Budapesti út 110. | |
| telefonszám: | +36 23 441-866 | |
| fax: | ||
| e-mail cím: | uh.enilno-t@oidutsnaltagniisroadub | |
| weboldal: | www.huingatlan.hu |