
| hirdetés azonosítója: | 129575 | |
| jelleg: | Eladó | |
| ingatlan típusa: | Üzlethelyiség | |
| irányár: | 218 322 000 Ft | |
| megye: | Somogy | még több Somogy megyei hirdetés |
| település: | Lengyeltóti | még több Lengyeltóti |
| cím (utca, házszám): | Batthyány tér | |
| telek terület: | 2693 m² | |
| hasznos alapterület: | 770 m² | |
| építés módja: | Tégla | |
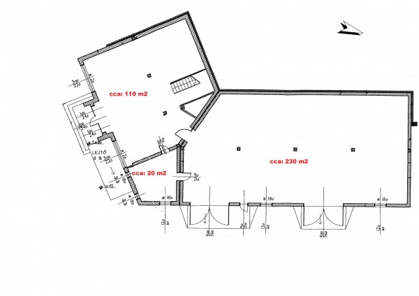
| bővebb leírás: | Üzlet- Raktár- Irodaház ELADÓ Az ingatlan a Balatontót 12 km-re Lengyeltóti belterületén, forgalmas főút mellett, a 4000 lakosú kisváros központjától gyalogosan 5 percre található. A 2639 nm telken található főépület cca 720 nm alapterületű, minden közművel ellátott, méreténél és elhelyezkedésénél fogva kereskedelmi, szolgáltató és termelő tevékenységre egyaránt hasznosítható.Az épülethez cca 50 m2 bővítmény is csatlakozik, Az épületben irodák, tárgyalók, szociális és kiszolgáló helységek raktárak és egy önálló bejárattal rendelkező lakás található. A 2002-ben épült és használatba vett épület korszerű technológiával készült. Raktárak 340 nm, Irodák Tárgyaló 120 nm, Üzlettér 110 nm, Egyéb kiszolgáló helység 90 nm Lakás 55 nm, tároló 50 nm A főbejárat előtt személygépkocsik számára 16 db parkoló került kialakításra, a nagykereskedelmi tevékenység végzéséhez az autómata raktárkapuk előtt 4 tehergépjárműnek is megfelelő várakozó hely áll rendelkezésre. További fejlesztési lehetőségekre a terület nagysága biztosít lehetőséget. Az ingatlan bármikor megtekinthető. TISZTELT ÉRDEKLŐDŐ! e-mailben történő érdeklődését bizalmasan kezelem, a nevet, és telefonszámot tartalmazó megkeresésre az ingatlan publikus információit tartalmazó anyagot küldök. Az ingatlannal és a vásárlás lehetőségével kapcsolatban minden részletre kiterjedő információt -telefonos időpont egyeztetést követően-, irodánkban személyesen kaphat. • ha ÖNNEK FONTOS, hogy csak jogilag fedhetetlen, ellenőrzött, problémamentes ingatlant vásároljon, • ha ÖNNEK FONTOS, hogy szakember segítse a megfelelő ingatlan felkutatásában és kedvező áron történő megvásárlásában, • ha ÖNNEK FONTOS, hogy adózási-, illetékfizetési-, és jogi kérdésekben is tájékoztatást kapjon. • ha ÖNNEK FONTOS az emberközpontú szolgáltatás, Akkor vegye fel velem a kapcsolatot KOMPASZ INGATLAN TANÁCSADÓ IRODA A MEGBÍZHATÓ IRÁNYTŰ AZ INGATLANPIACON Monory Gyula |
|
| helységek: | ||
| kapcsolat: | Monory Gyula | |
| telefonszám: | +36 30 936-0239 | |
| e-mail cím: | uh.zsapmoknaltagni@yronom | |
| ingatlan iroda: | Kompasz Ingatlan Tanácsadó Iroda | Az iroda további hirdetései |
| iroda címe: | 7400 Kaposvár, Zárda utca 21/a | |
| telefonszám: | +36 30 936-0239 | |
| fax: | ||
| e-mail cím: | uh.zsapmoknaltagni@ofni | |
| weboldal: | www.ingatlankompasz.hu |