
| hirdetés azonosítója: | 96306 | |
| jelleg: | Eladó | |
| ingatlan típusa: | Irodaház | |
| irányár: | 2 001 280 000 Ft | |
| megye: | Budapest | még több Budapest megyei hirdetés |
| település: | Budapest, VI. kerület | még több Budapest, VI. kerület |
| hasznos alapterület: | 2382 m² | |
| építés módja: | Tégla | |
| állapot: | Újszerű | |
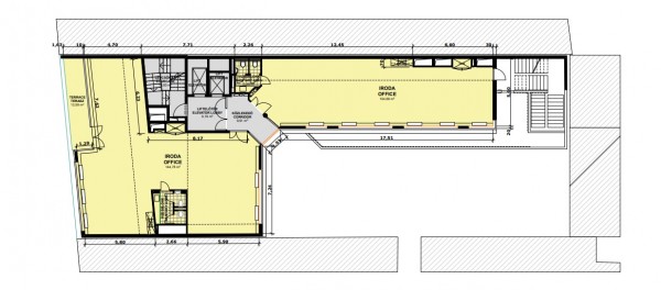
| bővebb leírás: | „A” kategóriás újszerű, modern irodaház a Westend közelében 6. kerületben, ELADÓ a Westend City Center közelében egy 2012 elején átadott modern irodaház, 2.200 nm kiadható irodaterülettel, 20 db mélygarázsban található parkolóhellyel. Az irodaház Budapest belvárosában a Westend City Center bevásárlóközpont közelében, a Nyugati közlekedési csomópont vonzáskörzetében található. Az épület -1 + földszint + 7 emelet magas, teljes nettó alapterülete 2.382 nm, a kiadható irodaterület 2.200 nm. Az „A” kategóriás modern épület kellemes belső kertjével színvonalas munkakörnyezetet biztosít az ott dolgozóknak. 24 órás recepció és biztonsági szolgálat, 4 csöves fűtés és légkondicionálás, álpadló és álmennyezet, moduláris szőnyegezés, nyitható ablakok, egységenként saját fogyasztásmérők, konyha és vizesblokk valamint belépőkártya- és biztonsági kamerarendszer szolgálja a bérlők kényelmét. Az épület belső udvarán intenzív zöldtetős kert került kialakításra öntözőrendszerrel. Az irodaház tömegközlekedési eszközökkel is könnyen megközelíthető; az M1 vagy az M3-as metróval, a 4-6-os villamosokkal, valamint a 72, 73, 76-os trolikkal. Az irányár nettó 5.5 millió EUR |
|
| helységek: | ||
| kapcsolat: | Papp Gabriella | |
| telefonszám: | +36 30 815-2511 | |
| e-mail cím: | uh.letracytic@ibag.ppap | |
| ingatlan iroda: | CITY CARTEL BUDAPEST ÉS AGGLOMERÁCIÓ | Az iroda további hirdetései |
| iroda címe: | 1118 Budapest, Hegyalja út 54. | |
| telefonszám: | +36 13 651-450 | |
| fax: | ||
| e-mail cím: | uh.letracytic@adub | |
| weboldal: | www.citycartel.hu |